
20ft Mini Version Expandable Container Office
This mini version expandable container office is designed to perfectly fit shipping in a 40HQ container-two units per load. With a drawer-style extension system, it expands the original floor space by 1.7 times. The built-in hinge mechanism ensures fast, automatic setup, reducing start-up costs.
20FT Expandable Container House Introduction
This innovative office space was meticulously customized for our client in Belgium, featuring bespoke color schemes, premium materials, and tailored functionality. Equipped internally with integrated lighting, switches, power outlets, and network ports, it meets all essential office requirements.
The standout feature is its exceptional expandability:
Effortless Deployment: Motorized winches remotely control the flip-up panels, enabling swift and convenient setup.
Smooth Extension: The internal framework glides effortlessly along side-mounted slide rails. Requiring just 1-2 people to extend.
Spacious & Bright: Fully expanded, the office offers significantly increased usable space. The extended section boasts a stunning three-sided glass enclosure, enhancing views and natural lighting.
Enhanced Mobility: At the client's request, forklift slots were incorporated into the design, facilitating easy relocation.
expandable container house
foldable container house
Independent 20ft Expandable Container House Mobile Outdoor Office Shop Made Shipping Container for Courtyard
20ft container house
Casa Modular Luxury Portable Prefabricated Folding Container House 20ft Expandable One Bedroom Villa Hotel Shop Apartment


This is a custom-made model with a 20-foot exterior profile, an expandable section, and interior finishes, all designed to meet your specific needs. The image above shows the exterior and interior of this roll-out office.
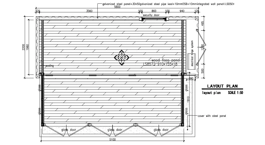
floor plan



Actual image
|
|
|
|
Panoramic Glass Design Three-sided glass walls create a bright, open environment with expansive views, offering both natural light and a modern office feel. |
Network-Ready Setup Equipped with built-in Ethernet ports, ensuring smooth connectivity and reliable performance for everyday office needs. |
|
|
|
|
Flexible & Portable Easy to open, close, and move, this office adapts to changing work locations with minimal effort and maximum convenience. |
External Equipment Room A dedicated compartment for external devices enhances appearance, simplifies maintenance, and keeps the main office area clutter-free. |
Extpandable container house interior
Opening Process: A hinged system controls the flap, allowing for remote opening. Only one person is required to push the inner case out.


|
|
|
The 20ft mini version expandable container adopts a compact, flat-pack design for efficient shipping. Each unit is folded to meet strict 40HQ container loading standards, allowing two products per container. The reinforced packaging ensures safety during sea transportation, minimizing damage risks. This optimized logistics solution reduces freight costs and supports global delivery with ease.
We usually export by sea. we use FOB as international trade term mostly. we can ship the goods to any Chinese port, and then your forwarder could take care of the rest of the shipment.

|
Design Skills
One of our strengths is to customize products for customers. We will put forward reasonable suggestions according to your customized needs, mainly in order to consider avoiding or reducing freight damage during the transportation process. |
Software
We have our own design department. We usually use the following software to produce design drawings and effects renderings for our clients: 1. Auto CAD ---- Drawings 2. 3D Max --------3D Renderings 3. Sketch Up Pro -------- 3D Models |
A Wide Variety of Decoration Options
We have our own home decoration supply chain in China.
1. In the product design stage, we can provide customers with a variety of home decoration materials and styles, and also be able to customize soft furniture for customers.
2. In the production stage, we will install all the materials and equipment for customers, and make video communication and confirmation with customers before the house leave the factory.
3. At the shipping stage, we will disassemble the fragile furniture, pack it up again, and finally install it at the destination by the customers themselves.




How to customize special products?
Send a product inquiry (Our main products havecontainer shop,container restaurant,container pool andcontainer house.)
Send the design you like and you will get an estimated price
If you don't have a preferred design, let us know your budget and size, and we will give you recommendations
Confirm your request
Pay the design fee and you will Get your special CAD&3D design. If you Pay the deposit,we will Produce your unique product and check your goods. So you should Pay the final payment,and we will load your goods for shipment
If you pay the deposit ,you will get your special CAD&3D design.We will Produce your unique product and check your goods. So you should Pay the final payment,and we will load your goods for shipment
How to customize special products?
Send a product inquiry (Our main products havecontainer shop,container restaurant,container pool andcontainer house.)
Send the design you like and you will get an estimated price
If you don't have a preferred design, let us know your budget and size, and we will give you recommendations
Confirm your request
Pay the design fee and you will Get your special CAD&3D design. If you Pay the deposit,we will Produce your unique product and check your goods. So you should Pay the final payment,and we will load your goods for shipment
If you pay the deposit ,you will get your special CAD&3D design.We will Produce your unique product and check your goods. So you should Pay the final payment,and we will load your goods for shipment.
We have two payment methods to start the project
1. Pay a US$500 design fee. We will create the drawings for you, finalize the details, and lock in the price. If the project is ready for production, a 50% down payment is required, and the design fee can be deducted from the payment.
2. Pay the 50% down payment directly, including the design fee. Upon completion of the project (including installation of all appliances and lighting), we will confirm every detail with the client via video, remove fragile furniture, repack, and repair the goods, and collect the remaining 50% payment before shipment.

Q: Are you a factory or a trading company?
We are a factory. Our factory address is No. 87, Jinchuan Road, Jintang County, Chengdu, Sichuan, China.
Q: What is your supply capacity? A: Annual production: 72,000 container houses, 564,000 square meters of prefabricated houses; 24,000 portable toilets; 360,000 square meters of steel structures.
Q: What should we do if we don't have professional workers to install?
A: Our container designs are so perfect that you can easily DIY them according to our drawings. We will provide detailed assembly, construction, and installation videos. If necessary, we can send our engineers to provide guidance services at your site.
Q: How long is your delivery time?
A: Generally within 2-30 days, depending on the order.
Q: How do you guarantee the quality of your products?
A: Strict product quality control, quality creates the future. This is our factory's tenet. Every product in our factory undergoes a strict testing procedure and must be 100% quality-certified before delivery.
Q: How can I get a quote for my project?
A: If you have a drawing, we can provide you with a quote based on your drawing. If you don't have a design, our engineers will create some drawings for your confirmation and then provide you with a quote.
Hot Tags: 20ft Mini Version Expandable Container House design, manufacturers, customized, quotation, made in China, 40ft expandable container office rendering






